Saint-Maur-des-Fossés (94100) SAINT MAUR LE PARC 600 m RER LE PARC ET MAIRIE
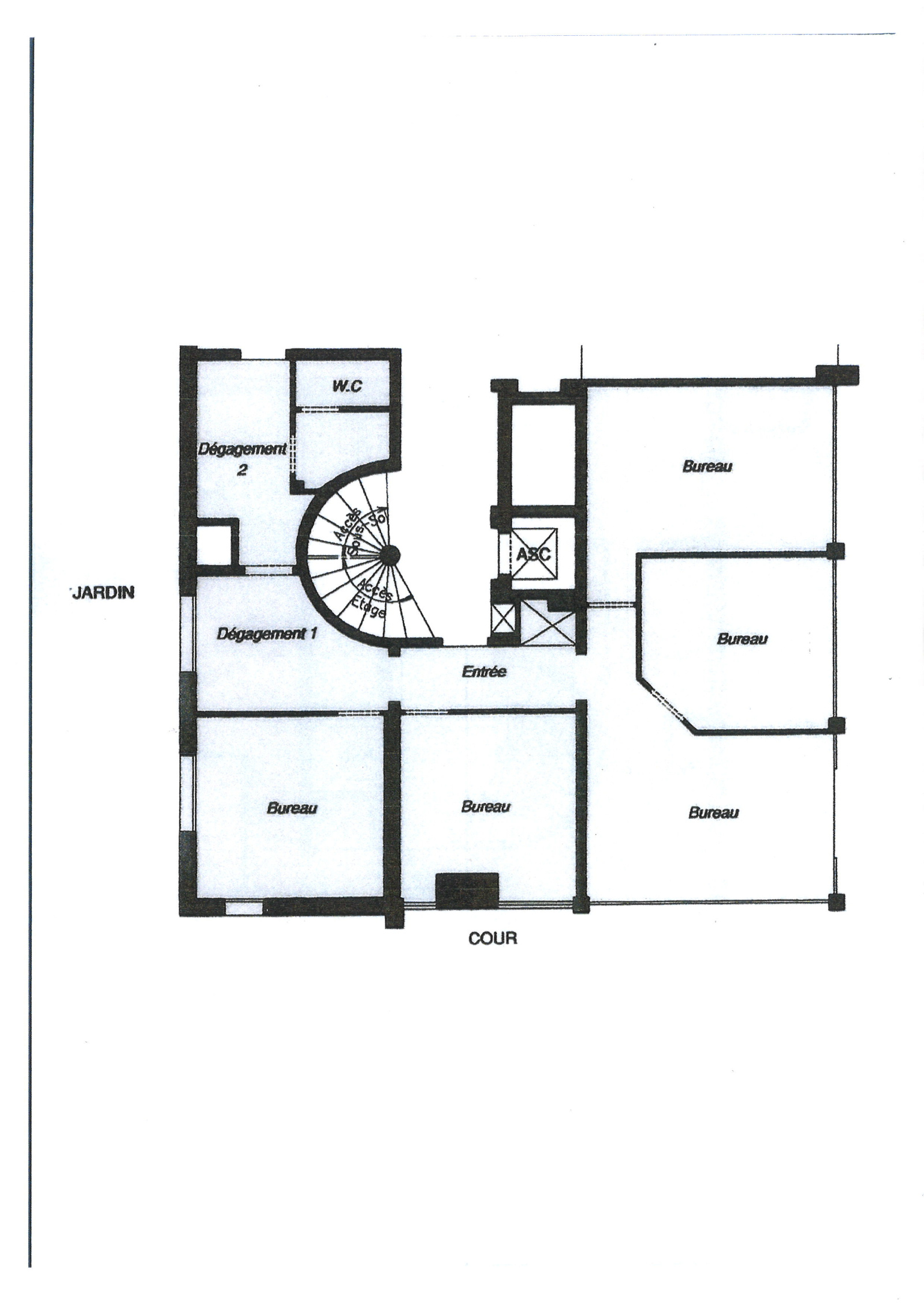
9 avenue de diane, 600 m RER A station PARC SAINT-MAUR, Bureaux 85 m² en pied d'immeuble. Les locaux disposent de 3 accès dont un direct sur rue offrant diverses possibiliés d'aménagements et d'usages. Actuellement la distribution comprend une entré / accueil, 4 bureaux séparés (11,4m², 10,6m²,14,5m² et 10,6m²), 2 dégagements dont un pouvant être aménagé en kitchenette ainsi qu'un sanitaire. Possibilité d'avoir un open space de 41 m² ou une distribution différente sur mesure. Stués dans une rue calme dans laquelle le stationnement aisé, les locaux sont lumineux et bénéficient d'un accès PMR compatible avec les professions réglementées. Idéal profession médicale, paramedicale, ou toute autres activités terciaires recherchant un environnement de qualité. LES LOCAUX NÉCESSITENT DES TRAVAUX DE RÉNOVATION ET DE RÉAMENAGEMENT SELON LES UTILISATEURS QUI POURRONT ËTRE PARTIELLEMENT PRIS EN CHARGE PAR LE BAILLEUR. Libre de suite
-
Commerces et santé
-
Loisirs
-
Ecoles
-
Transports
-
Pratique
* HC : Hors charges
Les informations recueillies sur ce formulaire sont enregistrées dans un fichier informatisé par La Boite Immo agissant comme Sous-traitant du traitement pour la gestion de la clientèle/prospects de l'Agence / du Réseau qui reste Responsable du Traitement de vos Données personnelles.
La base légale du traitement repose sur l'intérêt légitime de l'Agence / du Réseau.
Elles sont conservées jusqu'à demande de suppression et sont destinées à l'Agence / au Réseau.
Conformément à la loi « informatique et libertés », vous disposez des droits d’accès, de rectification, d’effacement, d’opposition, de limitation et de portabilité de vos données. Vous pouvez retirer votre consentement à tout moment en contactant directement l’Agence / Le Réseau.
Consultez le site https://cnil.fr/fr pour plus d’informations sur vos droits.
Si vous estimez, après avoir contacté l'Agence / le Réseau, que vos droits « Informatique et Libertés » ne sont pas respectés, vous pouvez adresser une réclamation à la CNIL.
Nous vous informons de l’existence de la liste d'opposition au démarchage téléphonique « Bloctel », sur laquelle vous pouvez vous inscrire ici : https://www.bloctel.gouv.fr
Dans le cadre de la protection des Données personnelles, nous vous invitons à ne pas inscrire de Données sensibles dans le champ de saisie libre.
Ce site est protégé par reCAPTCHA, les Politiques de Confidentialité et les Conditions d'Utilisation de Google s'appliquent.
Détails des diagnostics énergétiques
